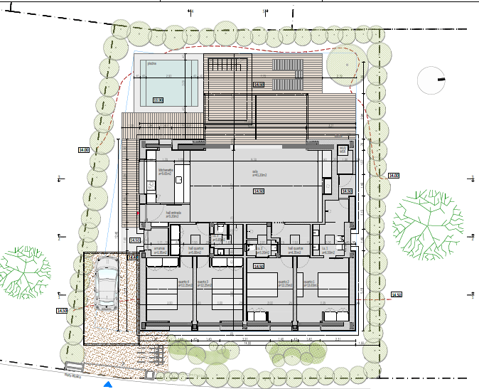
Housing Construction Location Lot 29 – Brejos da Carregueira, Comporta Main features Single-family house with swimming pool in traditional wood and thatch construction. Services provided Project Manager Construction Supervision Building area 170 m² Conclusion 2026 Date: 23 de January, 2024